Lakeshore Residences

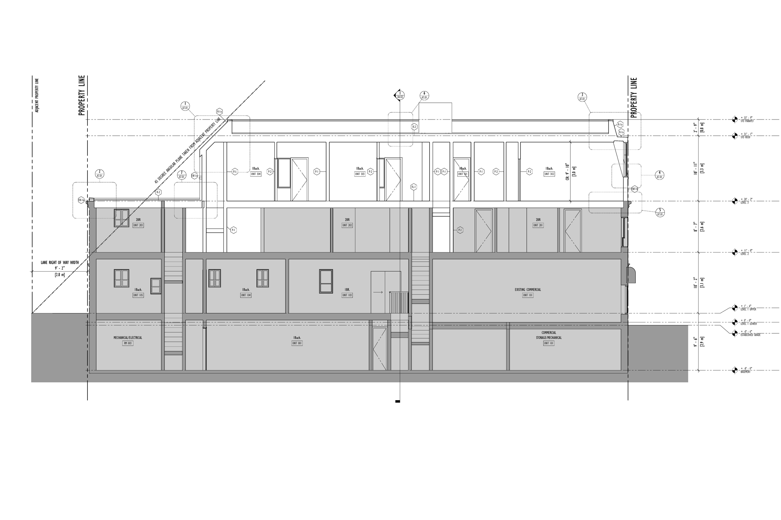
A third floor suite of units were added to this existing two-storey commercial-residential building in Toronto. Four studio units utilize a tight corner lot to achieve space and lighting requirements.

Jason Fung Architect; Drafting