Sherbourne Dental
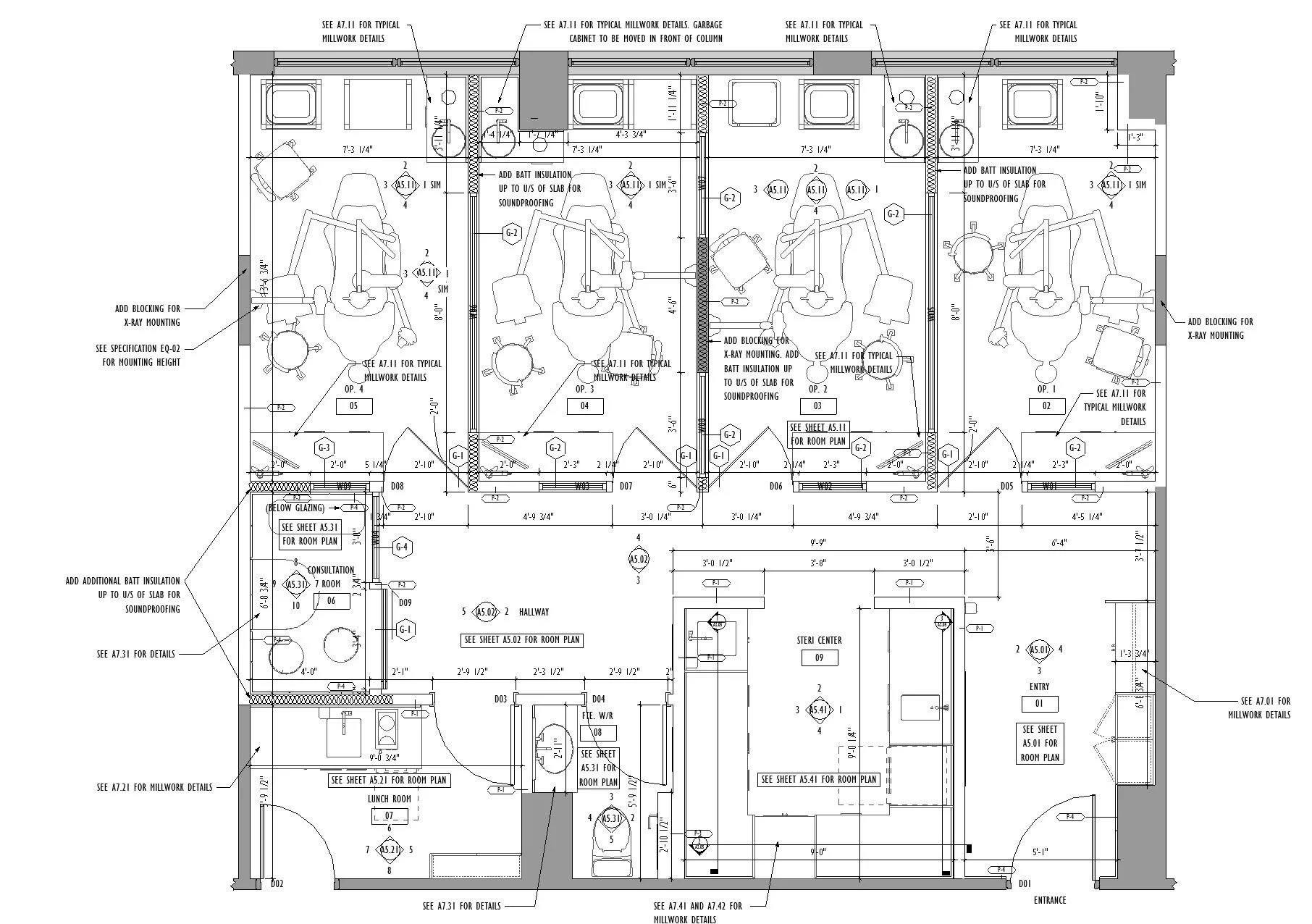
A dental office designed with four operatories and a steri center, highly technical in nature. Designed to prioritize equipment structural requirements and procedural requirements of the steri center.
Jason Fung Architect; Drafting
A dental office designed with four operatories and a steri center, highly technical in nature. Designed to prioritize equipment structural requirements and procedural requirements of the steri center.
Jason Fung Architect; Drafting